Rif: T373

Terratetto in a Empoli - Empoli

Terratetto con Giardino a Carraia, Empoli
Sei alla ricerca di un accogliente terratetto con giardino in una zona tranquilla ma comoda di Empoli? Questa potrebbe essere l'opportunità che stavi aspettando!

Situato nella desiderabile zona di Carraia, questo immobile offre la perfetta combinazione di vita suburbana e vicinanza ai servizi principali. Ideale per coppie, single o come investimento,
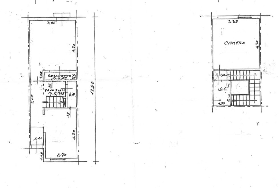
il terratetto si compone di un comodo soggiorno Cucina abitabile con angolo camino e accesso diretto al giardino, al primo piano una spaziosa camera matrimoniale e un bagno funzionale con doccia.

Il vero punto di forza di questa proprietà è il suo giardino privato, uno spazio esterno ideale per momenti di relax all'aria aperta, cene estive o per chi ha il pollice verde. Immagina di goderti le tue colazioni al sole o di creare il tuo piccolo angolo verde.

Una lavanderia organizzata e separata nel giardino offre la comodità che mancava a questo immobile.

La zona di Carraia è ben servita e offre facile accesso a negozi, supermercati, scuole e ai principali collegamenti stradali, garantendo al contempo un'atmosfera serena e riservata.

Caratteristiche principali:

Tipologia: Terratetto

Zona: Carraia, Empoli

Composizione: Soggiorno, Cucina, camera matrimoniale, bagno

Esterni: Giardino privato

Ideale per: Coppie, single, investimento

Non perdere l'occasione di visitare questo incantevole terratetto. Contattaci oggi stesso per maggiori informazioni o per fissare un appuntamento!

Riferimento annuncio T373
Prezzo: €177000

Caratteristiche

Superficie: 85mq
Vani: 3
Stato conservazione: Buono
Camere: 1
Bagni: 1
Balconi: No
Piano: t di 1
Riscaldamento: Autonomo

Altre informazioni

Soggiorno : 1
Cucina Abitabile : 1
Camera da letto matrimoniale : 1
Bagno : 1
Giardino : 1
ingresso indipendente : 1

Richiedi informazioni

* Campi obbligatori


Riferimento Immobile T373


CAPTCHA Image

Play CAPTCHA Audio
Refresh Image
Richiesta inviata con successo!