Rif: T616

Terratetto in a Empoli - Empoli

A pochi minuti da Empoli, proponiamo in vendita una spaziosa casa bifamiliare libera su tre lati, caratterizzata da ambienti luminosi e ampi spazi esterni.
L’immobile, disposto su due livelli principali oltre al piano sottotetto, si presenta in ottime condizioni e si adatta perfettamente sia a famiglie numerose che a chi desidera vivere in un contesto tranquillo senza rinunciare alla comodità dei servizi.
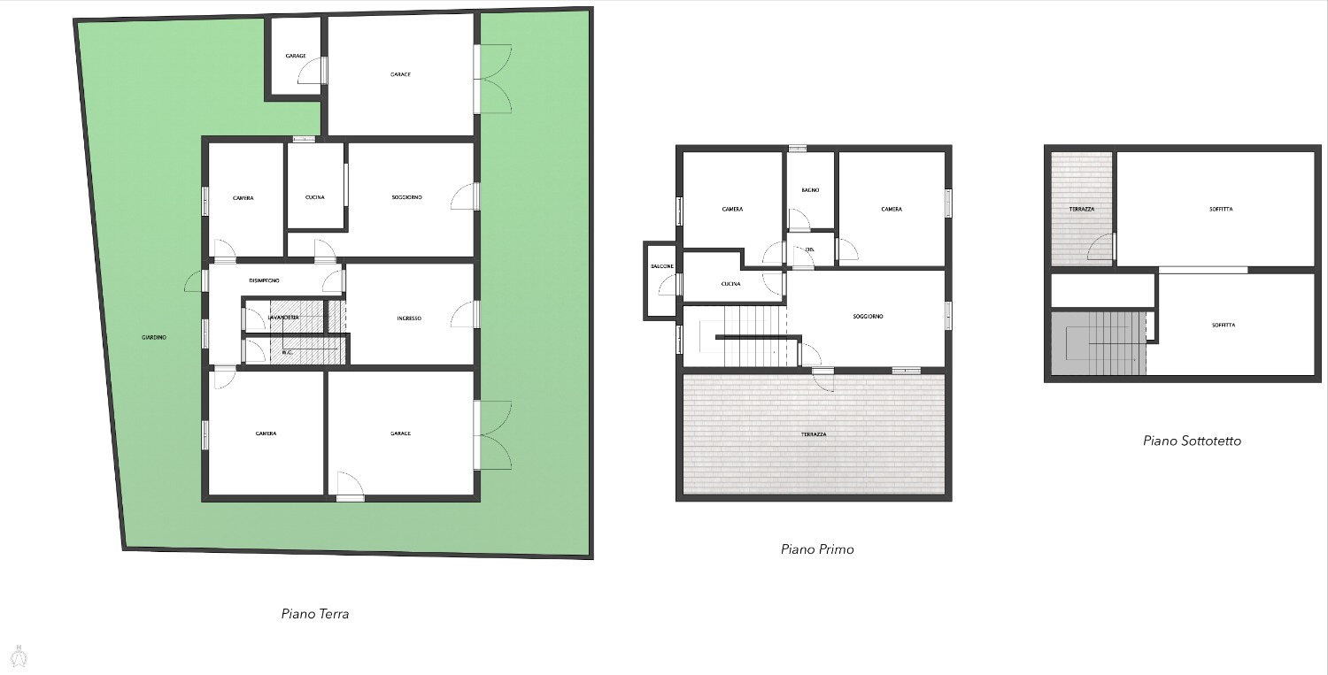
Al piano terra troviamo un ampio ingresso con soffitto a volte in mattoni, due camere matrimoniali, bagno finestrato, lavanderia, cucina abitabile e un soggiorno. Gli ambienti sono ariosi e ben distribuiti, con accesso diretto al giardino privato che circonda la casa, perfetto per momenti di relax, pranzi all’aperto o per chi ha animali domestici.
Il piano primo, collegato da elegante scala interna, ospita un secondo appartamento indipendente composto da soggiorno, cucina con balcone, due camere matrimoniali e bagno. Dalla zona giorno si accede a una grande terrazza panoramica coperta, con affaccio aperto sulla campagna, ideale per cene estive e momenti conviviali.
A completare la proprietà due garage doppi, pratici e funzionali, e un ampio sottotetto con ulteriori spazi sfruttabili come ripostiglio o studio.
La casa è perfetta per chi cerca indipendenza e comfort in una posizione strategica: a pochi minuti dal centro di Empoli e dalle principali vie di comunicazione.
Un’abitazione che unisce il fascino della tradizione toscana con la praticità di una casa moderna e versatile.
Per maggiori informazioni e per organizzare una visita all'immobile o per proporvi alternative immobiliari adatte alle vostre esigenze potete contattare telefonicamente o tramite e-mail l'agenzia e dare il seguente riferimento T616
Prezzo: €259000

Caratteristiche

Superficie: 220mq
Vani: 6
Stato conservazione: Buono
Camere: 4
Bagni: 2
Box: Box Singolo
Balconi: Si
Piano: 0 di 3
Riscaldamento: Autonomo

Altre informazioni

Camera : 1
Giardino : 1
Box : 2
ingresso indipendente : 1
Soggiorno : 2
Cucina : 2
Camera da letto matrimoniale : 3
Bagno : 2
Ripostiglio : 1
Balcone : 1
Terrazzo : 2

Richiedi informazioni

* Campi obbligatori


Riferimento Immobile T616


CAPTCHA Image

Play CAPTCHA Audio
Refresh Image
Richiesta inviata con successo!